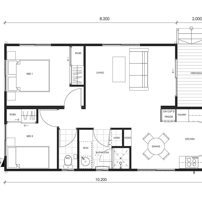
The Bottlebrush 55
- 2 bedrooms with built in wardrobes
- Large designer kitchen with overhead cupboards, provision for microwave and dishwasher
- Combined bathroom and laundry with separate toilet
- Spacious open plan living
Internal Floor area 55m²
2 Bedrooms
1 Bathroom
10.2m x 6m
Plans are for marketing purposes only and are subject to changes, for accurate and updated dimensioned plans and pricing please contact our team.










