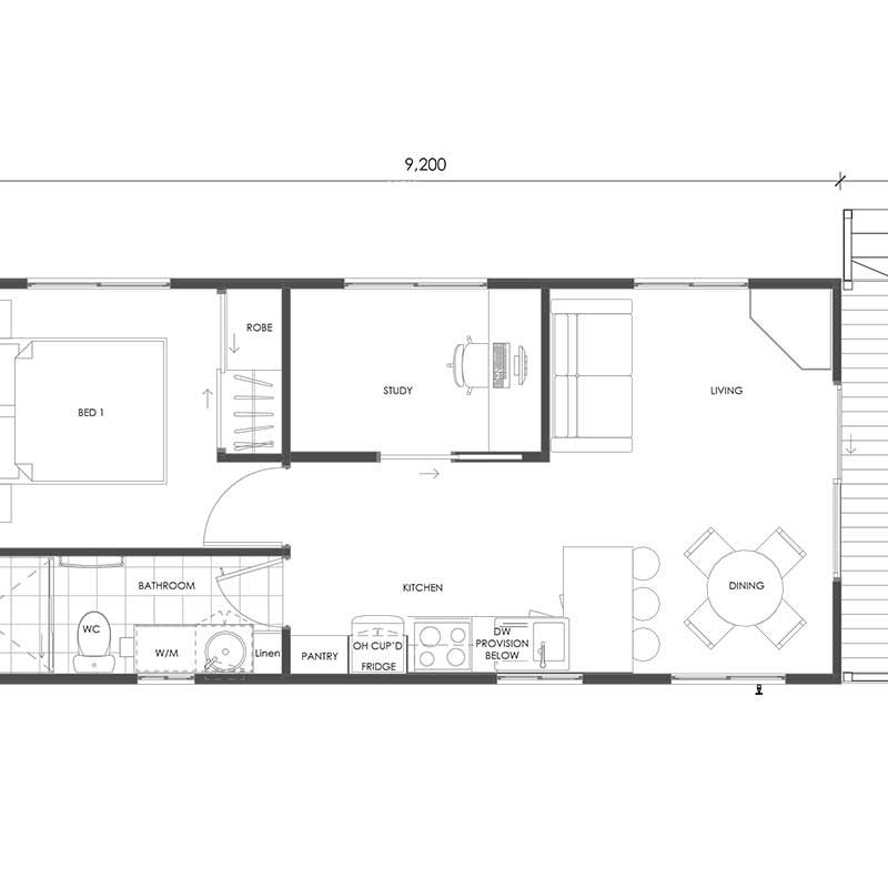
The Banksia 39
- Main bedroom plus a study or sewing room
- Open designer kitchen with breakfast bar
- Combined bathroom and laundry with built-in linen cupboard and provision for washing machine
- Spacious front verandah
Internal Floor area 38.6m2
1 Bedroom
1 Bathroom
11m x 4.2m
Download Plan
Plans are for marketing purposes only and are subject to changes, for accurate and updated dimensioned plans and pricing please contact our team.









